八戸市根城5丁目
この物件のお支払い例 頭金/ボーナス払い0円 頭金0円
- 物件価格
- 2,380万円
- 月々の支払い
(初回お支払額)
-
{{ monthlyPayment?.toLocaleString() }}円
※上記支払例の借入条件:金利{{ loanInterestRate }}%、借入総額2,380万円(うちボーナス払い{{ loanBonusMan }}{{ loanBonusUnit }}円)、借入期間{{ loanTerm }}年、{{ loanPaymentMethodName }}返済方式、ボーナス支払額(初回){{ bonusPayment?.toLocaleString() }}円
セールスポイント
【リフォーム中:完成はR8年1月予定】
駐車4台可能、バイクガレージ付き、徒歩5分以内に教育施設(根城小学校約270m、根城中学校約170m)が揃う、充実の子育て環境〇
所在地・交通
| 所在地 | 青森県八戸市根城5丁目 | ||
|---|---|---|---|
| 交通 |
JR八戸線 本八戸駅 徒歩27分 (2158m) |
その他交通 | |
| 小学校校区 |
八戸市立根城小学校 |
中学校校区 |
八戸市立根城中学校 |
※学校区は住所から自動判定したものであり、保証できる情報ではございません。正確な学校区はお問い合わせ下さい。
「人型アイコン」を地図上にドラッグすることで『Google ストリートビュー』に切り替わります。
※地図上の「対象地」は「青森県八戸市根城5丁目 」付近を示しています。実際の場所ではない場合がございます。詳しくはお問い合わせください。
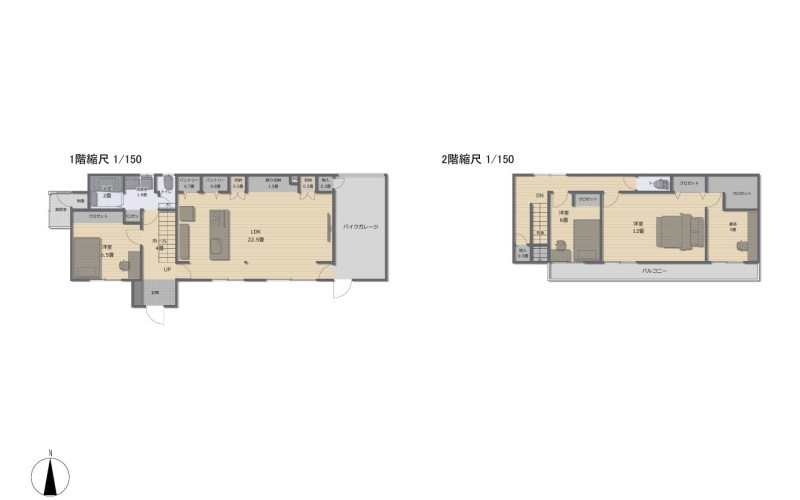
物件概要
| 価格 | 2,380万円 | 種目 | 中古一戸建て |
|---|---|---|---|
| 間取り | 4LDK | ||
| 土地面積 | 241.84㎡(公簿) | 私道面積 | |
| 建物面積 | 160.63㎡(壁芯) | 建物構造規模 |
木造 2階建 |
| 築年月(竣工月) | 1984年 7月 | 駐車場 | 有 (4台) |
| 地目 | 宅地 | ||
| 建ぺい率/容積率 | 60% / 200% | 都市計画 | 市街化区域 |
| 土地権利 | 所有権 | 地勢 | |
| 用途地域 | 第二種中高層住居専用 | 国土法 | |
| 現況 | 上物有 空家 | 取引態様 | 売主 |
取引条件等
| 引渡し | 相談 2026年 1月 下旬 |
|---|
その他
| 設備 | ◇リフォーム内容 システムキッチン交換、ユニットバス交換、トイレ交換、2階トイレ増設、洗面化粧台交換、玄関扉交換、建具交換、クロス張替え、インターホン設置 | ||
|---|---|---|---|
| 特徴 | |||
| 諸条件・相談 | |||
| 情報登録日 | 2025年4月4日 | 情報更新予定日 | 2025年11月23日 |
| 物件番号 | 481683 | ||

